ANTINCENDIO - studio ingegneria fulvio sassi

Cerca
Vai ai contenuti

Menu principale:

ANTINCENDIO

INGEGNERIA CLASSICA
Accenni al quadro normativo

L’impegno del professionista nel settore specifico segue le nuove procedure introdotte a seguito dell’emanazione del D.P.R. 1 agosto 2011, n. 151 (G.U. N°221 del 22/9/11) che con il “Regolamento recante semplificazione della disciplina dei procedimenti relativi alla prevenzione incendi” ha modificato, nell’Allegato I, le attività soggette ai controlli di prevenzione incendi, abrogando contestualmente il D.M. 16.02.1982 ed introducendo tali nuove procedure.

Brevi note esplicative sul D.P.R. 151.

Inoltre il 18 novembre 2015 è entrato in vigore Il D.M. del 2 agosto 2015 contenente il nuovo codice di prevenzione incendi.
Uno degli obiettivi del nuovo codice è di disporre di un testo unico in luogo di innumerevoli regole tecniche, ma tale obiettivo si potrà ritenere attuato nel momento in cui saranno inserite le varie RTV (regole tecniche verticali, ovvero le specifiche misure integrative per talune attività. civili e commerciali, quali uffici, autorimesse ecc., nonchè per quelle in applicazione delle recenti leggi approvate su strutture sanitarie, scuole e strutture turistico-ricettive esistenti).

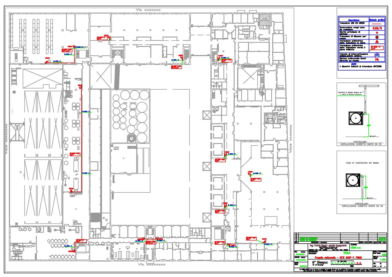
Alcuni esempi di progetti e di realizzazioni sotto la ns. direzione
Il nostro servizio

Sono molteplici le prestazioni che possono essere conferite ad un ingegnere nello specifico campo della sicurezza antincendio, che è il complesso delle scelte tecniche non solo in ordine alla prevenzione ma anche alla protezione, esse quindi sono suddivisibili in tre diverse e distinte fasi:

FASE 1

relativa alla Elaborazione del Progetto di “Ingegneria Antincendio”, generalmente costituita da una fase preliminare e da una definitiva (in funzione della complessità)

FASE 2

relativa al controllo ed alla assistenza alla direzione lavori e agli adempimenti per la SCIA (Segnalazione Certificata di Inizio Attività)

FASE 3

relativa agli adempimenti per la richiesta di Rinnovo Periodico di Conformità Antincendio

FASE 1 - ELABORAZIOE DEL PROGETTO


P
R
E
L
I
M
I
N
A
R
E

a1.

Colloquio/i con il Committente al fine di definire gli obiettivi degli interventi e/o Enti competenti.

a2.

Verifica dell’ubicazione dell’insediamento in considerazione delle attività circostanti o limitrofe.

a3.

Acquisizione ed analisi di elaborati grafici esistenti (planimetrie, sezioni, prospetti) di eventuali precedenti progetti anche di tipo impiantistico anche per la verifica di vincoli esistenti.

a4.

Individuazione e accordi con altre figure tecniche professionali che partecipano alla progettazione e definizione delle rispettive competenze e prestazioni.

a5.

Sopralluogo/ghi di verifica della situazione esistente.

a6.

Relazione stato di fatto.

a7.

Individuazione delle attività rientranti nell’allegato I al D.P.R. 151/2011 ed individuazione di normative, leggi e regolamenti che riguardano le singole attività individuate.

a8.

Elenco sommario degli interventi necessari.

D
E
F
I
N
I
T
I
V
A

b1.

Elaborazione Progetto finalizzato all’ottenimento della Valutazione (VP) eventualmente anche mediante richiesta “Nulla Osta di Fattibilità” (NOF) e/o di Deroga (DER) e in riferimento agli art. 3, 7 e 8 del D.P.R. 151/2011 per le attività di Cat. B o C o direttamente per la S.C.I.A. per le attività di Cat. A. La documentazione progettuale minima è quella riferentesi all'allegato I al D.M. 7.8.2012.

b2.

Indicazioni dettagliate per la per la progettazione/realizzazione delle strutture o l’utilizzo dei prodotti di compartimentazione (resistenza al fuoco) e per l’utilizzo dei prodotti o materiali di idonea reazione al fuoco.

b3.

Indicazioni dettagliate per la progettazione/realizzazione degli impianti idrici antincendio e/o impianti di estrazione fumo e calore e/o impianti di rilevazione e allarme incendio, illuminazione di sicurezza e altri impianti finalizzati alla prevenzione degli incendi.

b4.

Elenco dettagliato degli interventi necessari.

fase 2 - LA DIREZIONE ED ASSEVERAZIONE DEI LAVORI

c1.

Richiesta/e di verifica/he in corso d’opera

c2.

Elenco dettagliato degli interventi necessari ai fini antincendio.

c3.

Assistenza alla Direzione Lavori generale o Direzione Lavori opere antincendio.

c4.

Valutazione di resistenza al fuoco di elementi portanti e/o separanti.

c5.

Verifica corrispondenza in opera di elementi portanti e/o separanti resistenti al fuoco e/o materiali/prodotti per la reazione al fuoco.

c6.

Certificazione di impianti (per impianti non rientranti nel campo di applicazione del D.M. 37/08 in assenza di progetto)

c7.

Elaborati grafici riassuntivi

c8.

Predisposizione Asseverazione e S.C.I.A.

c9.

Valutazione del Rischio di Incendio se non già effettuato nella fase progettuale definitiva

c10.

Elaborati grafici vie di fuga

c11.

Redazione piano di emergenza

fase 3 - IL RINNOVO DEL CPI

d1.

Predisposizione richiesta di rinnovo periodico di Conformità antincendio previa acquisizione, da parte del professionista, presso il Committente di precedente documantazione.

d2.

Esecuzione di visite ricognitive, nel numero ritenuto necessario, con prove, controlli e quanto ritenuto opportuno per potersi ragionevolmente formare la convinzione della efficienza dei dispositivi, sistemi ed impianti finalizzati alla protezione attiva antincendio oggetto di asseverazione e che vengono espressamente menzionati nel C.P.I. e/o S.C.I.A. in fase di rinnovo.

d3.

Esecuzione di visite ricognitive, nel numero ritenuto necessario, con prove, controlli e quanto ritenuto opportuno per potersi ragionevolmente formare la convinzione della efficienza dei prodotti e sistemi per la protezione di parti o elementi portanti delle opere di costruzione, finalizzati ad assicurare la caratteristica di resistenza al fuoco, di seguito specificati finalizzati alla protezione passiva di cui al punto A.3 dell’allegato al D.M. 16.2.2007.

d4.

Dichiarazione di “Non aggravio di rischio” completa della necessaria documentazione (relazione tecnica ed elaborati grafici) per eventuali interventi di modifica rispetto al precedente C.P.I. o S.C.I.A.

 
Torna ai contenuti | Torna al menu